Bascharage N° réf : Apollonis_bureau 1 151 301 €
Description
Construction en cours - Nouveau projet immobilier d'architecture moderne à 9 unités dont 6 appartements (1-3 chambres) et 3 commerces, en plein centre de BASCHARAGE (à côté du KULTURHAUS KAERJENGER TREFF). Reste quelques unités à vendre.
Matériaux de qualité ‘haut de gamme' – garantie et assurance décennale comprises.
Promoteur de renommée. Proche de toutes les commodités diverses de la vie courante. Transports en commun (train/bus) à quelques pas. A saisir !
- Appartements d'une surface utile de 67.70 – 154.75 m² y compris des grands terrasses/balcons.
- A partir de EUR 551.100 htva
- Classe énergétique : A B A
Prix d'un emplacement intérieur : EUR 35.000 htva
Prix d'un emplacement extérieur : EUR 15.000 htva
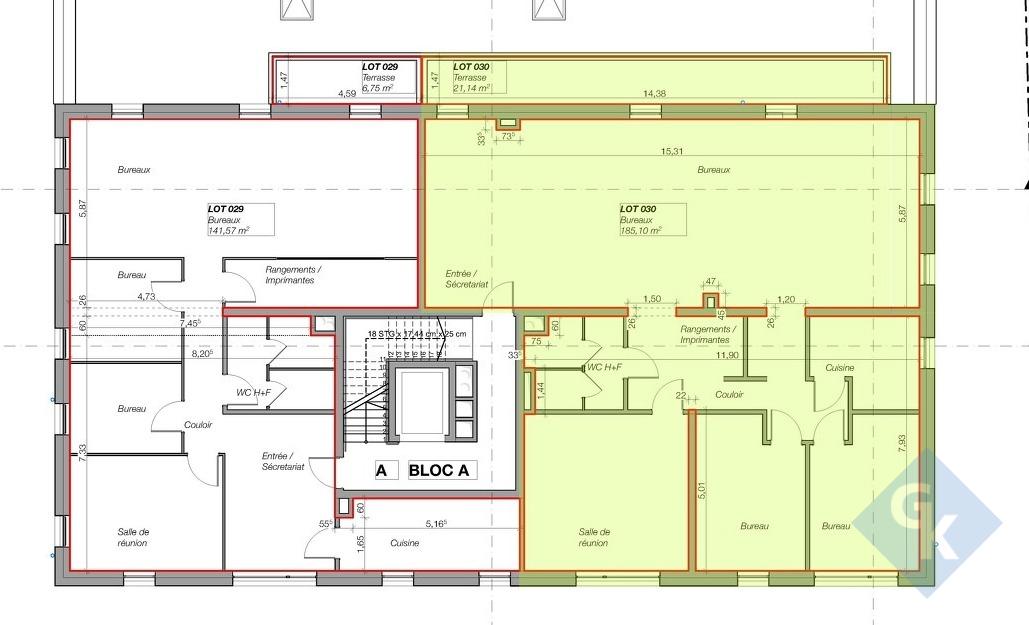
Composition du bureau située au 1er étage de la résidence Apollonis, avec une surface cadastrale de +- 185.10 m² + terrasse de 21.14 m² (pris pour 1/3 dans la surface utile) :
1er étage : entrée/secrétariat, open space (54.88 m²), espace WC (7,42 m²), salle de rangements/imprimantes, cuisine, salle de réunion, bureau 1, bureau 2, terrasse (21.14 m²).
Pour tout renseignement complémentaire ou information détaillée, veuillez nous contacter par email info@immonord.lu ou par tél: 26 811 911 1.
Proposition de crédit/financement à taux compétitif auprès d'une banque Luxembourgeoise incluse dans nos services gratuits et complets 'SOLUTIONS ALL IN ONE'. Nous nous occupons de votre dossier. Laissez un ancien banquier expérimenté négocier votre demande de crédit immobilier au meilleur taux.
Matériaux de qualité ‘haut de gamme' – garantie et assurance décennale comprises.
Promoteur de renommée. Proche de toutes les commodités diverses de la vie courante. Transports en commun (train/bus) à quelques pas. A saisir !
- Appartements d'une surface utile de 67.70 – 154.75 m² y compris des grands terrasses/balcons.
- A partir de EUR 551.100 htva
- Classe énergétique : A B A
Prix d'un emplacement intérieur : EUR 35.000 htva
Prix d'un emplacement extérieur : EUR 15.000 htva
Composition du bureau située au 1er étage de la résidence Apollonis, avec une surface cadastrale de +- 185.10 m² + terrasse de 21.14 m² (pris pour 1/3 dans la surface utile) :
1er étage : entrée/secrétariat, open space (54.88 m²), espace WC (7,42 m²), salle de rangements/imprimantes, cuisine, salle de réunion, bureau 1, bureau 2, terrasse (21.14 m²).
Pour tout renseignement complémentaire ou information détaillée, veuillez nous contacter par email info@immonord.lu ou par tél: 26 811 911 1.
Proposition de crédit/financement à taux compétitif auprès d'une banque Luxembourgeoise incluse dans nos services gratuits et complets 'SOLUTIONS ALL IN ONE'. Nous nous occupons de votre dossier. Laissez un ancien banquier expérimenté négocier votre demande de crédit immobilier au meilleur taux.
Détail du bien
Intérieur
| Surface : 192.15 m² |
| Année Construction : 2026 |
| Étage : 1 |
| Animaux acceptés : Oui |
Énergie
| Chauffage au sol : Oui |
| Pompe à chaleur : Oui |
| Triple vitrage : Oui |
| Vmc double flux : Oui |
| Indice énergétique : A |
| Indice isolation : B |
Sécurité
| Parlophone : Oui |
| Vidéophone : Oui |
Extérieur
| Terrasse : 21.14 m² |
Confort
| Ascenseur : Oui |
| Volets électriques : Oui |
localisation
IMMO NORD Ingeldorf
téléphone





