style="background-image:url(img/2243216_1.jpg)">
x5
Voir toutes les photos

Contactez votre agent immobilier

KARTHEISER Guy
+352 26 811 911 1
+352 621 170 970
Contact

partager

Oetrange N° réf : ME330-001GK-LOT-02 931 162 €

Appartement
107.99 m²
2
1 Sdb
1
1

Description

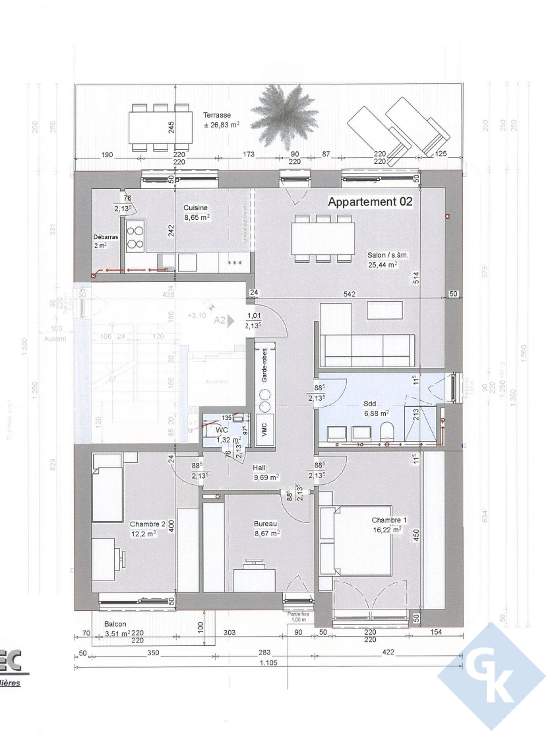
Grand appartement de 2 chambres avec bureau, situé au 1er étage d'une petite résidence à 3 unités et dont les travaux vont bientôt débuter. Architecture moderne avec toiture plate. Grande terrasse de 26,83 m². Proche de toutes les commodités du quotidien.
Prix indiqué : hors emplacements et HTVA.
Emplacements intérieur et extérieur disponibles au prix de 56 550 € HTVA (à ajouter au prix annoncé).

Composition de ce bien de 107.99 m² :
hall d'entrée (9.69 m²) - cuisine (8.65 m²) - salon (25.44m²) - chambres 1 (16.22m² ) - chambre 2 (12.20m²) - bureau (8.67 m²) - salle de douche (6.88 m²) - débarras (2 m²) - WC séparé (1.32m²) - terrasse (26.83 m²).

Pour tout renseignement complémentaire ou information détaillée, veuillez nous contacter par email info@immonord.lu ou par Tél: 26 811 911 1.

Proposition de crédit/financement à taux compétitif auprès d'une banque Luxembourgeoise incluse dans nos services gratuits et complets 'SOLUTIONS ALL IN ONE'. Nous nous occupons de votre dossier. Laissez un ancien banquier expérimenté négocier votre demande de crédit immobilier au meilleur taux.
Détail du bien
Intérieur
Surface : 107.99 m²
Année Construction : 2026
Nb de chambres : 2
Salle(s) de bain : 1
Salle de douche : 1
Nombre d'étages : 3
Étage : 1
Animaux acceptés : Oui
Énergie
Indice énergétique : A
Sécurité
Parlophone : Oui
Vidéophone : Oui
Extérieur
Terrasse : 26.83 m²
Parking
Parking(s) souterrain(s) : 1
Parkings : 1
Confort
Ascenseur : Oui
Volets électriques : Oui

localisation



IMMO NORD Ingeldorf

téléphone