Lentzweiler N° réf : CE259-001GK 950 000 €
Description
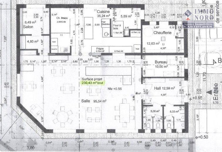
Nouveau local de commerce destiné à la restauration ( 50-60 couverts) d'une surface brute de 230 m²; 14 emplacements extérieurs; cuisine professionnelle 'all inclusive' et meubles meublants 'haut de gamme' comprises. Chauffage pompe à chaleur (géothermie).
TRIPLE vitrage. Grandes baies vitrées.
Tous les équipements professionnelles des marques ELECTROLUX, DETANT-SIMON, ISO MASTERS et HAUSSLER sont compris dans le prix et comprennent:
une laveuse à capot; un four mixte; une hotte avec condensateur; un fourneau 'Thermaline'; une hotte groupe d'extraction; une chambre froide et un four à bois.
Prix correct au vu de l'état neuf !
Possibilité d'acquérir également un terain à bâtir à côté de 4 ares au prix de vente de EUR 190.000.-.
Le bâtiment est divisée comme suit:
hall d'entrée (12,59 m²); restaurant/salle de service (95,54 m²); cuisine (35,24 m²); arrière cuisine; bureau (10 m²); tract sanitaire hommes et femmes ( 5.08 + 5.33 m²); salon (8.49 m²); chaufferie (12.63 m²) et 14 places de parking.
Pour tout complément d'information et/ou visite, contactez-nous au tél. : 26 811 911-1.
Proposition de crédit/financement à taux compétitif d'une banque luxembourgeoise incluse dans nos services gratuits et complets 'SOLUTIONS ALL IN ONE'. Nous nous occupons de tout. Laissez un ancien banquier expérimenté négocier votre demande de crédit au meilleur taux.
TRIPLE vitrage. Grandes baies vitrées.
Tous les équipements professionnelles des marques ELECTROLUX, DETANT-SIMON, ISO MASTERS et HAUSSLER sont compris dans le prix et comprennent:
une laveuse à capot; un four mixte; une hotte avec condensateur; un fourneau 'Thermaline'; une hotte groupe d'extraction; une chambre froide et un four à bois.
Prix correct au vu de l'état neuf !
Possibilité d'acquérir également un terain à bâtir à côté de 4 ares au prix de vente de EUR 190.000.-.
Le bâtiment est divisée comme suit:
hall d'entrée (12,59 m²); restaurant/salle de service (95,54 m²); cuisine (35,24 m²); arrière cuisine; bureau (10 m²); tract sanitaire hommes et femmes ( 5.08 + 5.33 m²); salon (8.49 m²); chaufferie (12.63 m²) et 14 places de parking.
Pour tout complément d'information et/ou visite, contactez-nous au tél. : 26 811 911-1.
Proposition de crédit/financement à taux compétitif d'une banque luxembourgeoise incluse dans nos services gratuits et complets 'SOLUTIONS ALL IN ONE'. Nous nous occupons de tout. Laissez un ancien banquier expérimenté négocier votre demande de crédit au meilleur taux.
Détail du bien
Intérieur
| Surface : 230.00 m² |
| Année Construction : 2020 |
| Disponibilité : immédiate |
Énergie
| Chauffage au sol : Oui |
| Pompe à chaleur : Oui |
| Geothermie : Oui |
| Triple vitrage : Oui |
| Indice énergétique : A |
| Indice isolation : B |
Extérieur
| Terrain : 9.10 ares |
Parking
| Parkings : 14 |
localisation
IMMO NORD Ingeldorf
téléphone




















