Luxembourg N° réf : AE273-003GK_LUXEMBOURG 628 000 €
Description
Appartement (2ième étage) en très bon état à Luxembourg - Eich. Situé dans une résidence datant de 2001, cet appartement se compose de deux chambres à coucher, d'un grand living, d'une cuisine moderne séparée et d'une cave privative de 5.46 m². Volets roulants électriques. Classe énergétique: C E. Charges mensuelles réduites de EUR 289.-.
Situation très calme et centrale proche de toutes les commodités diverses de la vie courante ( transports en commun, écoles, docteurs, loisirs, commerces...).
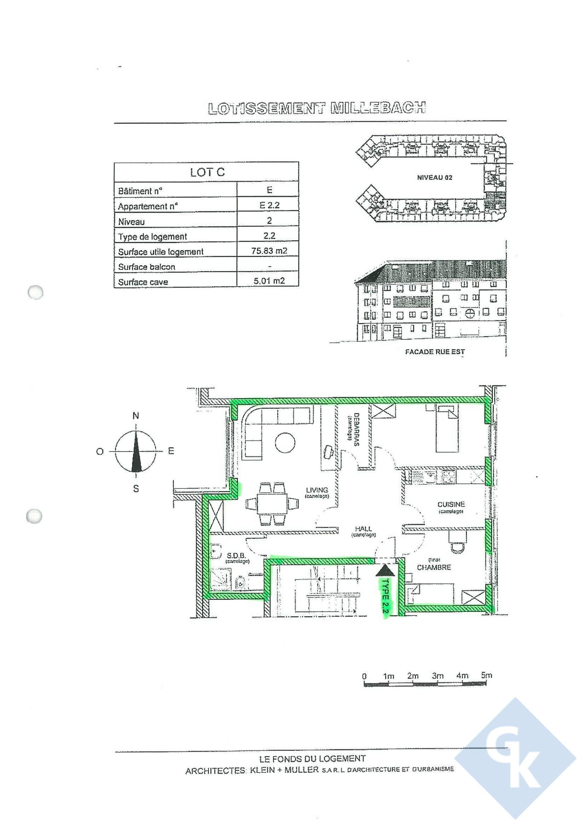
Composition de l'appartement au 2ème étage avec une surface habitable de +/- 77.44 m²:
- rez-de-chaussée : cave (5,36 m²);
- 2e étage : living (+- 23.5 m²) avec salle à manger (13,43 m²); cuisine équipée (7,93 m²); chambre 1 (12,21 m²); chambre 2 (10,07 m²); salle de bains avec WC (6,85 m²); débarras (3,29 m²).
Pour tout complément d'information et/ou des visites, contactez-nous au Tél: 26 811 911 1.
Proposition de crédit/financement à taux compétitif d'une banque luxembourgeoise incluse dans nos services gratuits et complets 'SOLUTIONS ALL IN ONE'. Nous nous occupons de tout. Laissez un ancien banquier expérimenté négocier votre demande de crédit au meilleur taux.
Situation très calme et centrale proche de toutes les commodités diverses de la vie courante ( transports en commun, écoles, docteurs, loisirs, commerces...).
Composition de l'appartement au 2ème étage avec une surface habitable de +/- 77.44 m²:
- rez-de-chaussée : cave (5,36 m²);
- 2e étage : living (+- 23.5 m²) avec salle à manger (13,43 m²); cuisine équipée (7,93 m²); chambre 1 (12,21 m²); chambre 2 (10,07 m²); salle de bains avec WC (6,85 m²); débarras (3,29 m²).
Pour tout complément d'information et/ou des visites, contactez-nous au Tél: 26 811 911 1.
Proposition de crédit/financement à taux compétitif d'une banque luxembourgeoise incluse dans nos services gratuits et complets 'SOLUTIONS ALL IN ONE'. Nous nous occupons de tout. Laissez un ancien banquier expérimenté négocier votre demande de crédit au meilleur taux.
Détail du bien
Intérieur
| Surface : 77.44 m² |
| Année Construction : 2001 |
| Nb de chambres : 2 |
| Salle(s) de bain : 1 |
| Disponibilité : 30.09.2026 |
| Étage : 2 |
| Animaux acceptés : Oui |
Énergie
| Chauffage au gaz : Oui |
| Double vitrage : Oui |
| Indice énergétique : C |
| Indice isolation : E |
Sécurité
| Parlophone : Oui |
Confort
| Volets électriques : Oui |
localisation
IMMO NORD Ingeldorf
téléphone












