Asselborn N° réf : ASSELBORN_LOT 1_maison.1.1 641 072 €
Description
Découvrez ce nouveau projet exclusif composé de 4 spacieux maisonnettes situés à Asselborn, dans un environnement calme et verdoyant.
Construction réalisée par un entrepreneur-promoteur de renom ; plans encore modulables ; matériaux de qualité haut de gamme !
Composition du lot n° 1.1 d'une surface habitable de 126,40 m² avec 3 chambres à coucher :
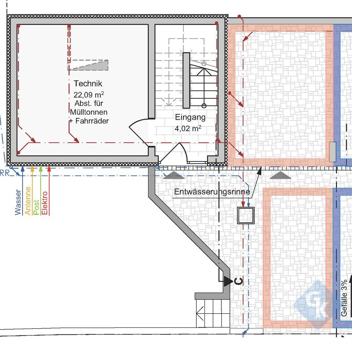
- rez-de-chaussée : hall d'entrée commun - local technique commun
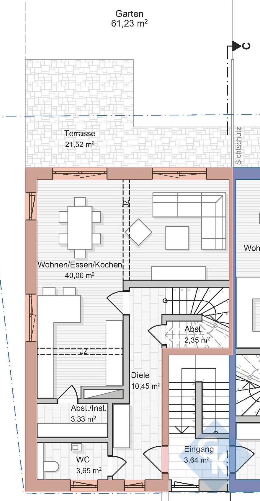
- 1er étage : hall d'entrée / couloir (10,45 m²), séjour avec cuisine ouverte (40,06 m²), arrière-cuisine (3,33 m²), débarras (2,35 m²), WC séparé (3,65 m²)
- 2ème étage : hall de nuit (5,08 m²), chambre avec dressing (19,44), deux autres chambres (13,91 et 13,09 m²), salle de bains (10,48 m²), buanderie (4,56 m²)
En supplément :
- Grande terrasse ensoleillée (orientation sud) de 21,52 m²
- 1 emplacement couvert + 1 emplacement extérieur
- Jardin privatif de 61,23 m²
- Grenier aménageable
Accessibilité idéale :
- 4 km de Troisvierges (gare ferroviaire vers Luxembourg-Ville)
- 9 km de Clervaux (commerces, écoles, restaurants, etc.)
- 10 km du Shopping Center Massen (large offre commerciale et alimentaire)
- Accès rapide à la N7 vers Diekirch et Luxembourg-Ville
Aspects techniques :
Pompe à chaleur, chauffage au sol, fenêtres PVC triple vitrage, volets roulants électriques, VMC double flux.
Le prix de vente se comprend hors TVA - prix des emplacements, de la terrasse et du jardin privatif inclus !
Pour tout complément d'information et/ou la documentation détaillée, veuillez nous contacter par mail : info@immonord.lu ou par tél. : 26 811 911-1.
Proposition de crédit/financement à taux compétitif auprès d'une banque luxembourgeoise incluse dans nos services gratuits et complets 'SOLUTIONS ALL IN ONE'. Nous nous occupons de votre dossier. Laissez un ancien banquier expérimenté négocier votre demande de crédit immobilier au meilleur taux.
Construction réalisée par un entrepreneur-promoteur de renom ; plans encore modulables ; matériaux de qualité haut de gamme !
Composition du lot n° 1.1 d'une surface habitable de 126,40 m² avec 3 chambres à coucher :
- rez-de-chaussée : hall d'entrée commun - local technique commun
- 1er étage : hall d'entrée / couloir (10,45 m²), séjour avec cuisine ouverte (40,06 m²), arrière-cuisine (3,33 m²), débarras (2,35 m²), WC séparé (3,65 m²)
- 2ème étage : hall de nuit (5,08 m²), chambre avec dressing (19,44), deux autres chambres (13,91 et 13,09 m²), salle de bains (10,48 m²), buanderie (4,56 m²)
En supplément :
- Grande terrasse ensoleillée (orientation sud) de 21,52 m²
- 1 emplacement couvert + 1 emplacement extérieur
- Jardin privatif de 61,23 m²
- Grenier aménageable
Accessibilité idéale :
- 4 km de Troisvierges (gare ferroviaire vers Luxembourg-Ville)
- 9 km de Clervaux (commerces, écoles, restaurants, etc.)
- 10 km du Shopping Center Massen (large offre commerciale et alimentaire)
- Accès rapide à la N7 vers Diekirch et Luxembourg-Ville
Aspects techniques :
Pompe à chaleur, chauffage au sol, fenêtres PVC triple vitrage, volets roulants électriques, VMC double flux.
Le prix de vente se comprend hors TVA - prix des emplacements, de la terrasse et du jardin privatif inclus !
Pour tout complément d'information et/ou la documentation détaillée, veuillez nous contacter par mail : info@immonord.lu ou par tél. : 26 811 911-1.
Proposition de crédit/financement à taux compétitif auprès d'une banque luxembourgeoise incluse dans nos services gratuits et complets 'SOLUTIONS ALL IN ONE'. Nous nous occupons de votre dossier. Laissez un ancien banquier expérimenté négocier votre demande de crédit immobilier au meilleur taux.
Détail du bien
Intérieur
| Surface : 126.40 m² |
| Année Construction : 2026 |
| Nb de chambres : 3 |
| Salle(s) de bain : 1 |
| Disponibilité : à convenir |
| Animaux acceptés : Oui |
Énergie
| Chauffage au sol : Oui |
| Pompe à chaleur : Oui |
| Triple vitrage : Oui |
| Vmc double flux : Oui |
| Indice énergétique : A |
| Indice isolation : B |
Sécurité
| Vidéophone : Oui |
Extérieur
| Jardin : Oui |
| Terrasse : 21.52 m² |
| Terrain : 0.61 ares |
Parking
| Parking(s) souterrain(s) : 1 |
| Parkings : 1 |
Confort
| Volets électriques : Oui |
localisation
IMMO NORD Ingeldorf
téléphone









