style="background-image:url(img/2243282_1.jpg)">
x15
Voir toutes les photos

Contactez votre agent immobilier

KARTHEISER Guy
+352 26 811 911 1
+352 621 170 970
Contact

partager

Esch-Sur-Alzette N° réf : AE140-006GK 495 000 €

Appartement
72.48 m²
2
1

Description

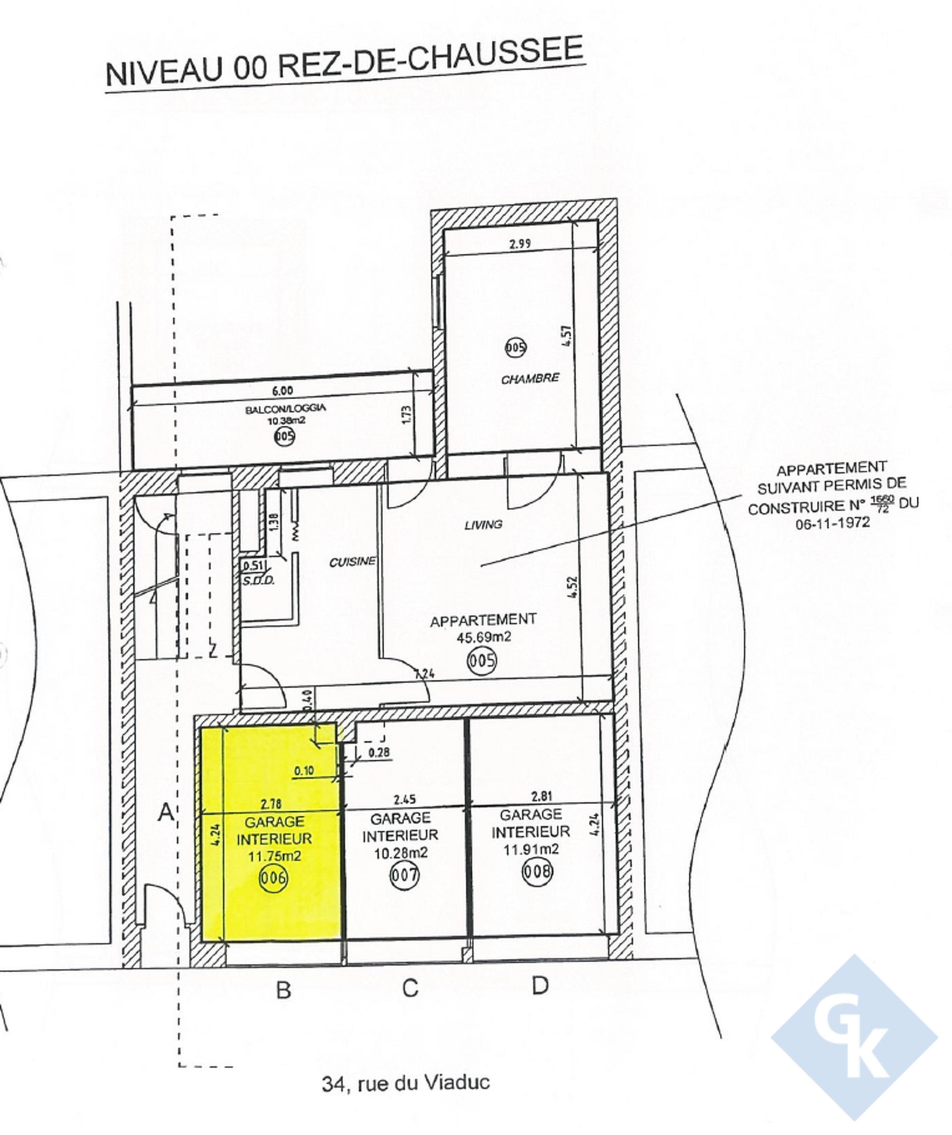
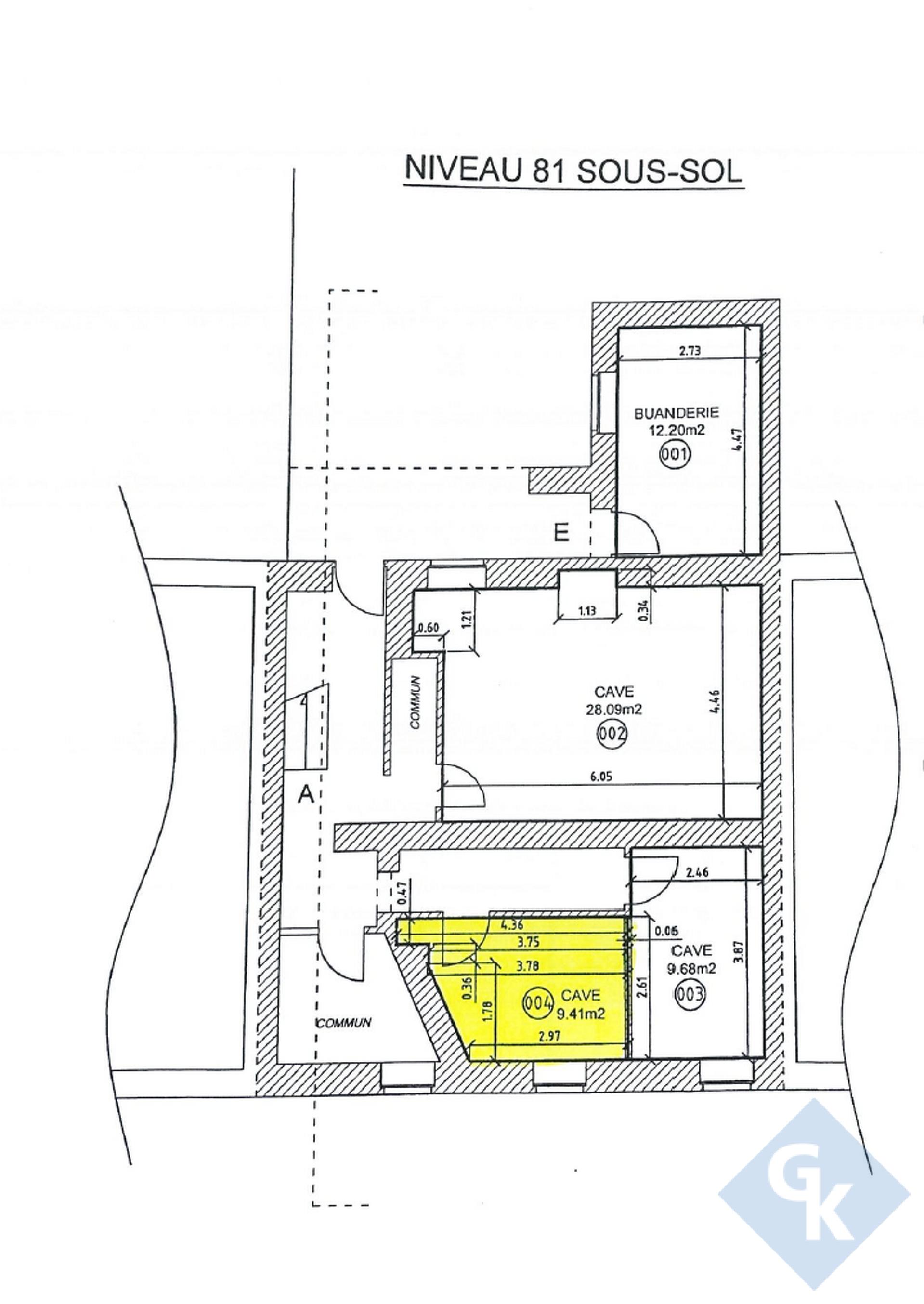
Bel appartement à 2 chambres (1er étage) rénové à partir de 2018, situé dans une petite résidence à 4 unités. Garage fermé pour 1 voiture et cave de 9.41 m² comprises.
Espace grenier pour stockage (+- 44 m²) et jouissance d'un jardin et d'une terrasse, à partager avec les 3 autres copropriétaires.
Situation centrale et calme à proximité immédiate de toutes les commodités : écoles, médecins, pharmacie, zone piétonne, commerces, etc.
Rénovations faites à partir de 2018: menuiseries extérieures avec des volets en grande partie électriques, installations techniques de chauffage, sanitaire, électricité et plomberie; toiture refaite en 2023 (ardoise); cage d'escalier en 2020.

Composition de l'appartement d'une surface habitable de 72.48 m² :
* hall d'entrée (3.38 m²), salon / salle à manger / cuisine de 2018 (29.96 m²), salle de douche + WC + buanderie (11 m²), chambre 1 (15.13 m²), chambre 2 (12.24 m²).
* cave privative de (9.41 m²) au sous-sol
* garage fermé (11.75 m²) au RDCH.
* espace grenier pour stockage
* jouissance d'un jardin et d'une terrasse commune.

Pour tout renseignement complémentaire ou information détaillée, veuillez nous contacter par mail info@immonord.lu ou par tél : 26 811 911 1.

Proposition de crédit/financement à taux compétitif auprès d'une banque Luxembourgeoise incluse dans nos services gratuits et complets 'SOLUTIONS ALL IN ONE'. Nous nous occupons de votre dossier. Laissez un ancien banquier expérimenté négocier votre demande de crédit immobilier au meilleur taux.
Détail du bien
Intérieur
Surface : 72.48 m²
Rénové : Oui
Nb de chambres : 2
Disponibilité : à convenir
Nombre d'étages : 3
Étage : 1
Animaux acceptés : Oui
Énergie
Chauffage au gaz : Oui
Double vitrage : Oui
Indice énergétique : G
Indice isolation : H
Sécurité
Parlophone : Oui
Vidéophone : Oui
Parking
Garage : 1
Confort
Volets électriques : Oui

localisation



IMMO NORD Ingeldorf

téléphone