Reuler N° réf : AE360-101MK 478 000 €
Description
Spacieux appartement rénové de 4 chambres avec grenier aménageable à Reuler !
Situé dans un environnement calme et agréable, cet appartement récemment rénové offre de beaux volumes ainsi qu'une entrée privative garantissant plus d'intimité.
4 chambres spacieuses ; rénovation récente avec finitions modernes ; grande cuisine équipée ; grenier aménageable de 52 m² ; toutes commodités accessibles en 5 min en voiture ; arrêt de bus devant la résidence ; deux emplacements de parking extérieurs !
Les charges mensuelles sont de 300 €.
Un bien parfait pour un investissement locatif rentable ou une grande famille en quête d'espace !
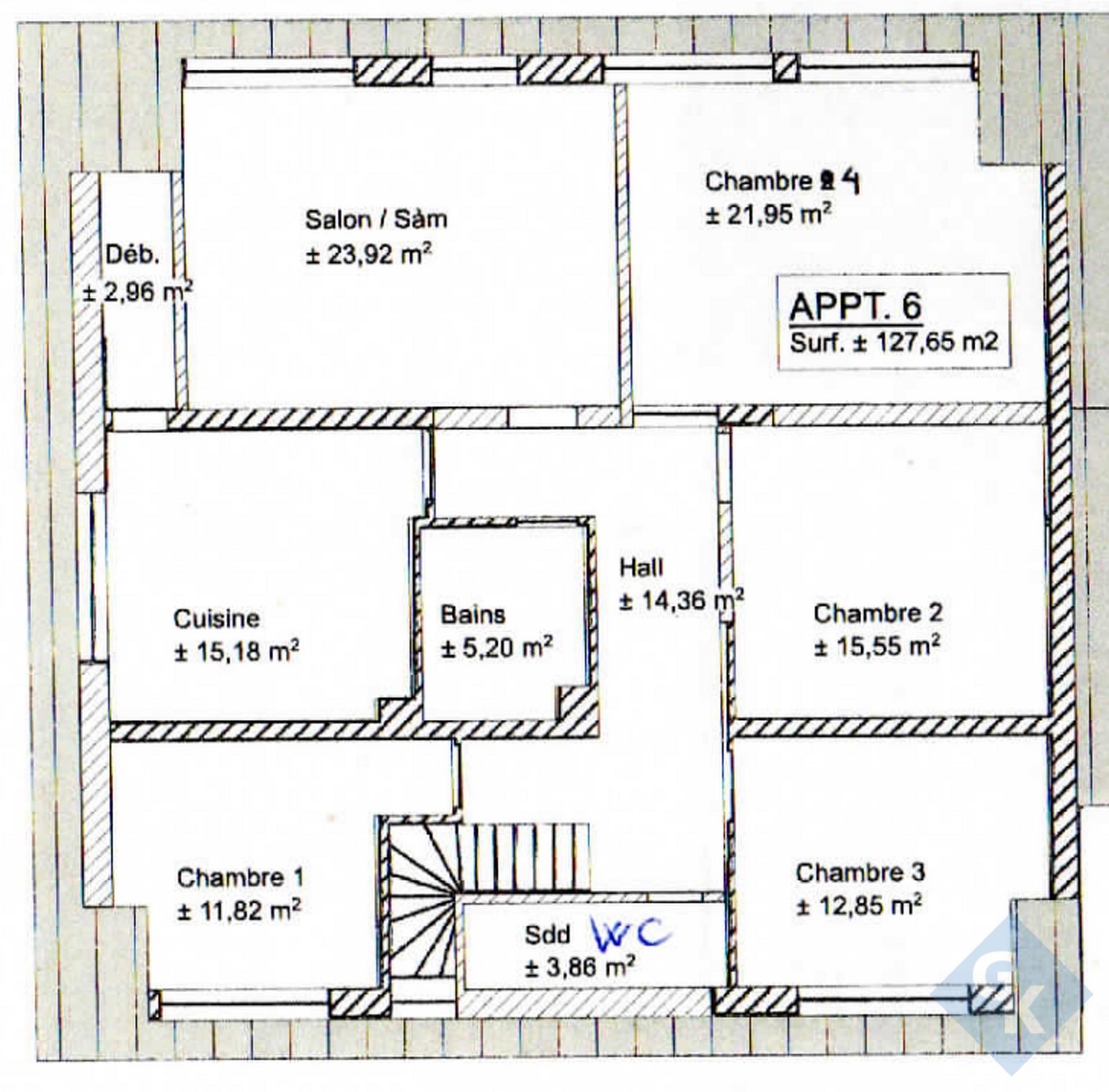
Composition de l'appartement d'une surface cadastrale de 131,43 m² :
Hall d'entrée (6,10 m²) ; couloir (14,36 m²) ; salon (23,92 m²) ; cuisine équipée (15,18 m²) ; débarras (2,96 m²) ; 4 chambres (21,95 // 15,55 // 12,85 // 11,82 m²) ; salle de bains avec douche, WC et raccordement pour lave-linge (5,20 m²) ; WC séparé (3,86 m²)
Caractéristiques techniques : chauffage central au mazout avec radiateurs, fenêtres en PVC avec double vitrage, volets roulants électriques, revêtement en carrelage dans toutes les pièces, dalle en béton, etc.
Pour tout renseignement complémentaire ou information détaillée, veuillez nous contacter par mail info@immonord.lu ou par tél. : 26 811 911 1.
Proposition de crédit/financement à taux compétitif auprès d'une banque luxembourgeoise incluse dans nos services gratuits et complets 'SOLUTIONS ALL IN ONE'. Nous nous occupons de votre dossier. Laissez un ancien banquier expérimenté négocier votre demande de crédit immobilier au meilleur taux.
Situé dans un environnement calme et agréable, cet appartement récemment rénové offre de beaux volumes ainsi qu'une entrée privative garantissant plus d'intimité.
4 chambres spacieuses ; rénovation récente avec finitions modernes ; grande cuisine équipée ; grenier aménageable de 52 m² ; toutes commodités accessibles en 5 min en voiture ; arrêt de bus devant la résidence ; deux emplacements de parking extérieurs !
Les charges mensuelles sont de 300 €.
Un bien parfait pour un investissement locatif rentable ou une grande famille en quête d'espace !
Composition de l'appartement d'une surface cadastrale de 131,43 m² :
Hall d'entrée (6,10 m²) ; couloir (14,36 m²) ; salon (23,92 m²) ; cuisine équipée (15,18 m²) ; débarras (2,96 m²) ; 4 chambres (21,95 // 15,55 // 12,85 // 11,82 m²) ; salle de bains avec douche, WC et raccordement pour lave-linge (5,20 m²) ; WC séparé (3,86 m²)
Caractéristiques techniques : chauffage central au mazout avec radiateurs, fenêtres en PVC avec double vitrage, volets roulants électriques, revêtement en carrelage dans toutes les pièces, dalle en béton, etc.
Pour tout renseignement complémentaire ou information détaillée, veuillez nous contacter par mail info@immonord.lu ou par tél. : 26 811 911 1.
Proposition de crédit/financement à taux compétitif auprès d'une banque luxembourgeoise incluse dans nos services gratuits et complets 'SOLUTIONS ALL IN ONE'. Nous nous occupons de votre dossier. Laissez un ancien banquier expérimenté négocier votre demande de crédit immobilier au meilleur taux.
Détail du bien
Intérieur
| Surface : 131.43 m² |
| Rénové : Oui |
| Nb de chambres : 4 |
| Salle(s) de bain : 1 |
| Disponibilité : immédiate |
| Nombre d'étages : 1 |
| Étage : 1 |
| Animaux acceptés : Oui |
Énergie
| Chauffage au fuel : Oui |
| Double vitrage : Oui |
| Indice énergétique : I |
| Indice isolation : I |
Parking
| Parkings : 2 |
Confort
| Volets électriques : Oui |
localisation
IMMO NORD Ingeldorf
téléphone















