Ingeldorf N° réf : 024-A-C-01_ 260 000 €
Description
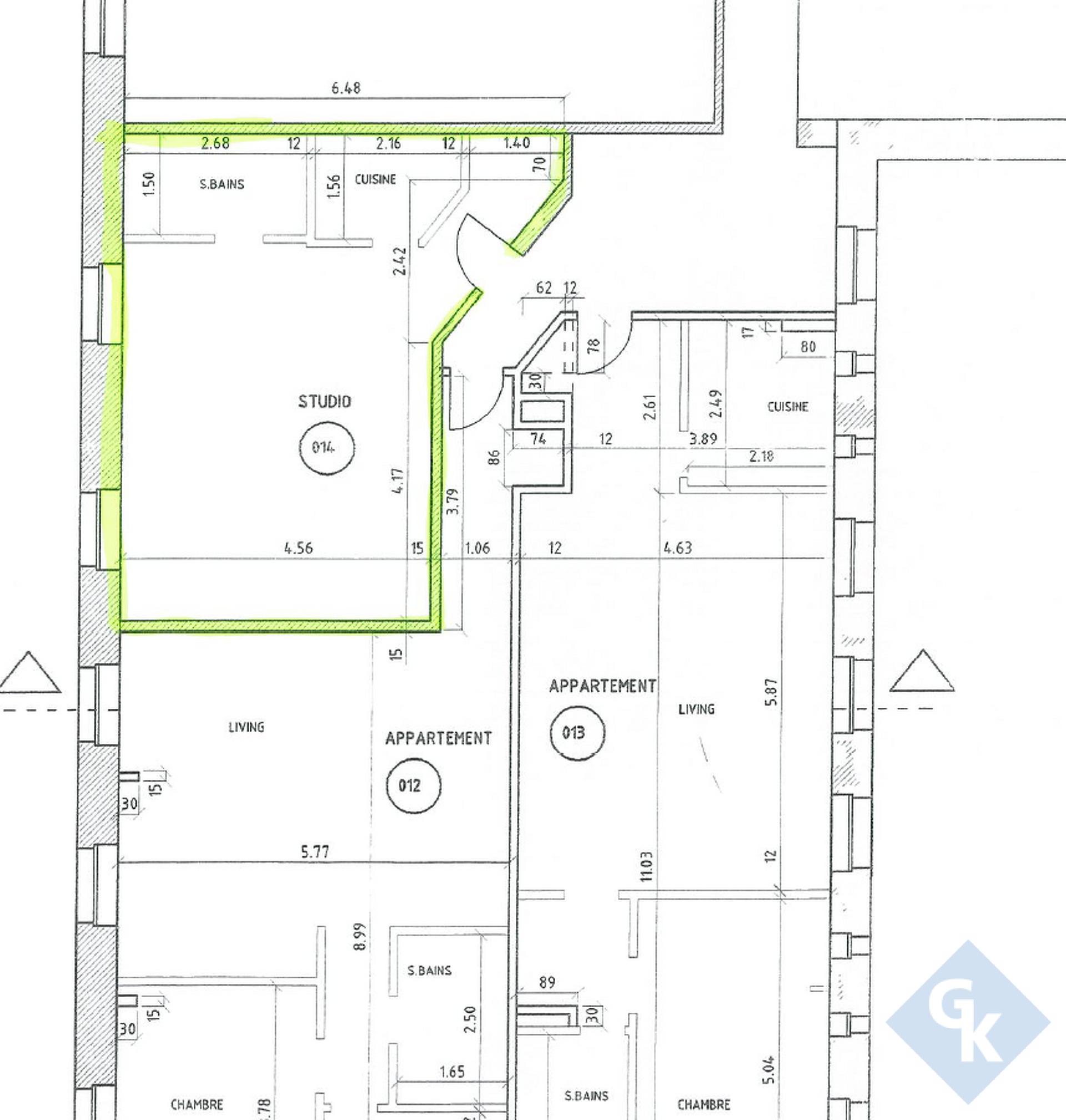
Bel studio libre de suite, situé au 1er étage d'une petite résidence à Ingeldorf, à proximité immédiate de toutes les commodités (commerces, écoles, médecins, transports et loisirs). Cet appartement offre une surface habitable totale de 37.54 m².
Composition du studio:
1er étage: hall d'entrée (4.03 m²); cuisine (3.37 m²); living/chambre (26.12 m²); salle de douche (4.02 m²); cave au rdch.
Pour tout renseignement complémentaire ou information détaillée, veuillez nous contacter par email info@immonord.lu ou par Tél: 26 811 911 1.
Proposition de crédit/financement à taux compétitif auprès d'une banque Luxembourgeoise incluse dans nos services gratuits et complets 'SOLUTIONS ALL IN ONE'. Nous nous occupons de votre dossier. Laissez un ancien banquier expérimenté négocier votre demande de crédit immobilier au meilleur taux.
Composition du studio:
1er étage: hall d'entrée (4.03 m²); cuisine (3.37 m²); living/chambre (26.12 m²); salle de douche (4.02 m²); cave au rdch.
Pour tout renseignement complémentaire ou information détaillée, veuillez nous contacter par email info@immonord.lu ou par Tél: 26 811 911 1.
Proposition de crédit/financement à taux compétitif auprès d'une banque Luxembourgeoise incluse dans nos services gratuits et complets 'SOLUTIONS ALL IN ONE'. Nous nous occupons de votre dossier. Laissez un ancien banquier expérimenté négocier votre demande de crédit immobilier au meilleur taux.
Détail du bien
Intérieur
| Surface : 37.54 m² |
Énergie
| Chauffage au gaz : Oui |
| Indice énergétique : I |
| Indice isolation : I |
localisation
IMMO NORD Ingeldorf
téléphone









