Osweiler N° réf : Maison nr. 2A 1 131 741 €
Description
Nouveau projet de 6 maisons spacieuses et lumineuses avec 3 à 4 chambres à coucher et 2 salles de bains ; situation calme dans la Rue Lannebaach à Osweiler ; terrasses et jardins orientés plein sud, accessibles par des grandes baies vitrées coulissantes ; greniers aménageables avec raccordements en attente ; prix « clé en main » non soumis à indexation ; garantie et assurance décennale comprise !
La maison lot n°2 d'une surface totale de 306 m² sur un terrain de 4,68 ares se compose comme suit :
- Au rez-de-chaussée : hall d'entrée – living – cuisine ouverte sur salle à manger – WC séparé – buanderie – local technique – garage pour deux voitures – terrasse et jardin – deux parkings extérieurs
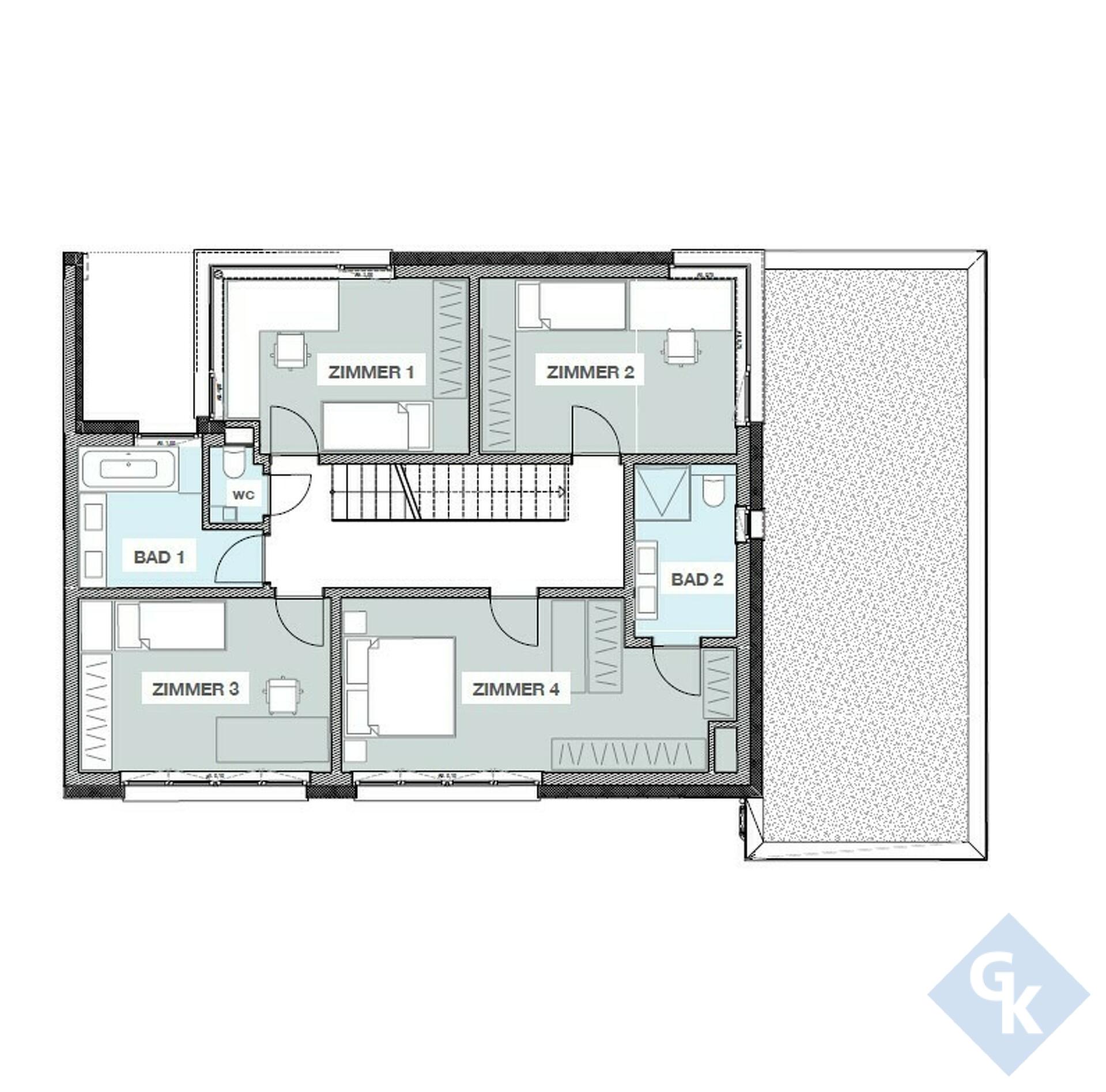
- À l'étage : hall de nuit – chambre parentale avec dressing et salle de douche – trois autres chambres – salle de bains avec WC – WC séparé
- Aux combles : couloir – 6 pièces à aménager
Aspects techniques : classe énergétique AA, pompe à chaleur air/eau, chauffage au sol avec thermostats individuels, VMC avec récupération de chaleur, équipement électrique et sanitaire attrayant, fenêtres en alu avec triple vitrage et volets roulants électriques, porte d'entrée en alu, choix de carrelage moderne, etc.
N.B. : Tous les prix indiqués s'entendent hors TVA.
Pour tout complément d'information et/ou la documentation détaillée, veuillez nous contacter par mail : info@immonord.lu ou par tél. : 26 811 911-1.
Proposition de crédit/financement à taux compétitif auprès d'une banque luxembourgeoise incluse dans nos services gratuits et complets 'SOLUTIONS ALL IN ONE'. Nous nous occupons de votre dossier. Laissez un ancien banquier expérimenté négocier votre demande de crédit immobilier au meilleur taux.
La maison lot n°2 d'une surface totale de 306 m² sur un terrain de 4,68 ares se compose comme suit :
- Au rez-de-chaussée : hall d'entrée – living – cuisine ouverte sur salle à manger – WC séparé – buanderie – local technique – garage pour deux voitures – terrasse et jardin – deux parkings extérieurs
- À l'étage : hall de nuit – chambre parentale avec dressing et salle de douche – trois autres chambres – salle de bains avec WC – WC séparé
- Aux combles : couloir – 6 pièces à aménager
Aspects techniques : classe énergétique AA, pompe à chaleur air/eau, chauffage au sol avec thermostats individuels, VMC avec récupération de chaleur, équipement électrique et sanitaire attrayant, fenêtres en alu avec triple vitrage et volets roulants électriques, porte d'entrée en alu, choix de carrelage moderne, etc.
N.B. : Tous les prix indiqués s'entendent hors TVA.
Pour tout complément d'information et/ou la documentation détaillée, veuillez nous contacter par mail : info@immonord.lu ou par tél. : 26 811 911-1.
Proposition de crédit/financement à taux compétitif auprès d'une banque luxembourgeoise incluse dans nos services gratuits et complets 'SOLUTIONS ALL IN ONE'. Nous nous occupons de votre dossier. Laissez un ancien banquier expérimenté négocier votre demande de crédit immobilier au meilleur taux.
Détail du bien
Intérieur
| Surface : 306.00 m² |
| Année Construction : 2026 |
| Nb de chambres : 4 |
| Salle(s) de bain : 1 |
| Disponibilité : à convenir |
| Nombre d'étages : 3 |
| Animaux acceptés : Oui |
Énergie
| Chauffage au sol : Oui |
| Pompe à chaleur : Oui |
| Climatisation : Oui |
| Triple vitrage : Oui |
| Vmc double flux : Oui |
| Indice énergétique : A |
| Indice isolation : A |
Sécurité
| Vidéophone : Oui |
Extérieur
| Jardin : Oui |
| Terrasse : 32.22 m² |
| Terrain : 4.68 ares |
Parking
| Garage : 2 |
| Parkings : 2 |
Confort
| Volets électriques : Oui |
localisation
IMMO NORD Ingeldorf
téléphone













