Echternach N° réf : App. 11 621 936 €
Description
Nouveau projet de résidence en construction à ECHTERNACH ; résidence de 23 appartements et deux unités de commerces ;
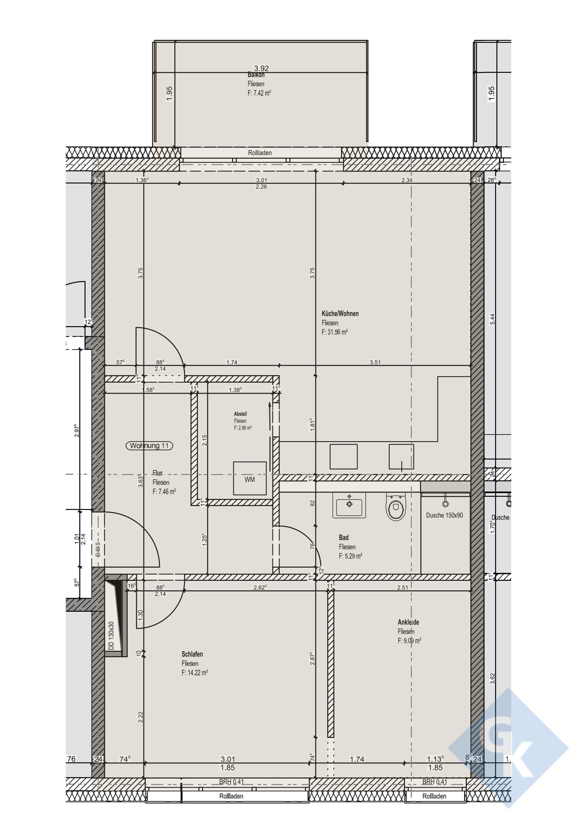
Composition de l'appartement au 2ème étage Lot 112 app n°11 de 74.04 m² brute avec un balcon de 7.42 m² et une cave de 5.28 m² au sous-sol selon le cadastre vertical et de 74.31 m² selon le plan de l'architecte (tous les murs ont déjà été retirés et le balcon n'est inclus qu'à 50 %) :
2ème étage étage :
- hall d'entrée (7.46 m²) ; cuisine ouverte sur séjour/salle à manger (31.56 m²) ; débarras (2.98 m²) ; chambre (14.22 m²) ; salle de douche (5.29 m²) ; balcon (7.42 m²).
Prix annoncés = prix de vente hors TVA et sans emplacement.
Prix d'un emplacement intérieur 39.500 EUROS hors TVA
Pour tout renseignement complémentaire ou information détaillée, veuillez nous contacter par email info@immonord.lu ou par Tél: 26 811 911 1.
Proposition de crédit/financement à taux compétitif auprès d'une banque Luxembourgeoise incluse dans nos services gratuits et complets 'SOLUTIONS ALL IN ONE'. Nous nous occupons de votre dossier. Laissez un ancien banquier expérimenté négocier votre demande de crédit immobilier au meilleur taux.
Composition de l'appartement au 2ème étage Lot 112 app n°11 de 74.04 m² brute avec un balcon de 7.42 m² et une cave de 5.28 m² au sous-sol selon le cadastre vertical et de 74.31 m² selon le plan de l'architecte (tous les murs ont déjà été retirés et le balcon n'est inclus qu'à 50 %) :
2ème étage étage :
- hall d'entrée (7.46 m²) ; cuisine ouverte sur séjour/salle à manger (31.56 m²) ; débarras (2.98 m²) ; chambre (14.22 m²) ; salle de douche (5.29 m²) ; balcon (7.42 m²).
Prix annoncés = prix de vente hors TVA et sans emplacement.
Prix d'un emplacement intérieur 39.500 EUROS hors TVA
Pour tout renseignement complémentaire ou information détaillée, veuillez nous contacter par email info@immonord.lu ou par Tél: 26 811 911 1.
Proposition de crédit/financement à taux compétitif auprès d'une banque Luxembourgeoise incluse dans nos services gratuits et complets 'SOLUTIONS ALL IN ONE'. Nous nous occupons de votre dossier. Laissez un ancien banquier expérimenté négocier votre demande de crédit immobilier au meilleur taux.
Détail du bien
Intérieur
| Surface : 74.04 m² |
| Année Construction : 2024 |
| Nb de chambres : 1 |
| Étage : 2 |
| Animaux acceptés : Oui |
Énergie
| Chauffage au sol : Oui |
| Triple vitrage : Oui |
| Vmc double flux : Oui |
| Indice énergétique : A |
| Indice isolation : A |
Sécurité
| Parlophone : Oui |
| Vidéophone : Oui |
Extérieur
| Balcon : 7.42 m² |
Confort
| Ascenseur : Oui |
| Volets électriques : Oui |
localisation
IMMO NORD Ingeldorf
téléphone











