Mertzig N° réf : LM291-001GK_MERTZIG_LOT2 2 800 €
Description
Belle maison construite en 2022/2023.
Avec une surface habitable de 203,34 m², cette propriété offre de beaux volumes ainsi qu'un confort moderne idéal pour un cadre de vie agréable.
Proche de toutes les commodités de la vie courante et à +- 15 minutes d'Ettelbrück.
Il se compose comme suit:
Composition du Lot 2:
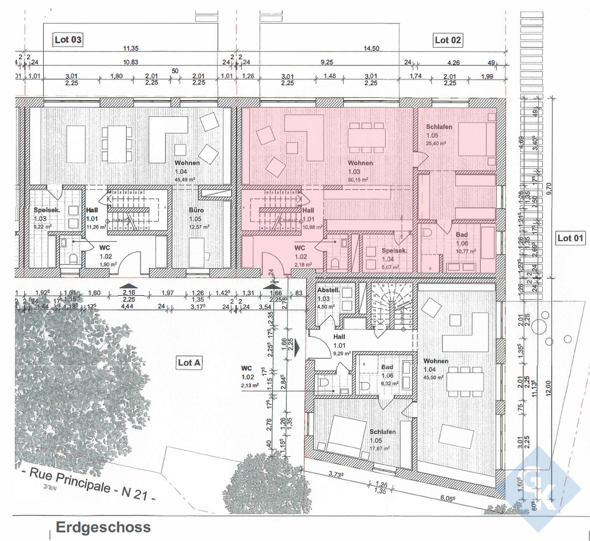
R/C : hall d'entrée , débarras, WC visiteur, salle de bain (10,77 m²), chambre à coucher (25,40 m²) et grand séjour de 50,15 m² avec cuisine.
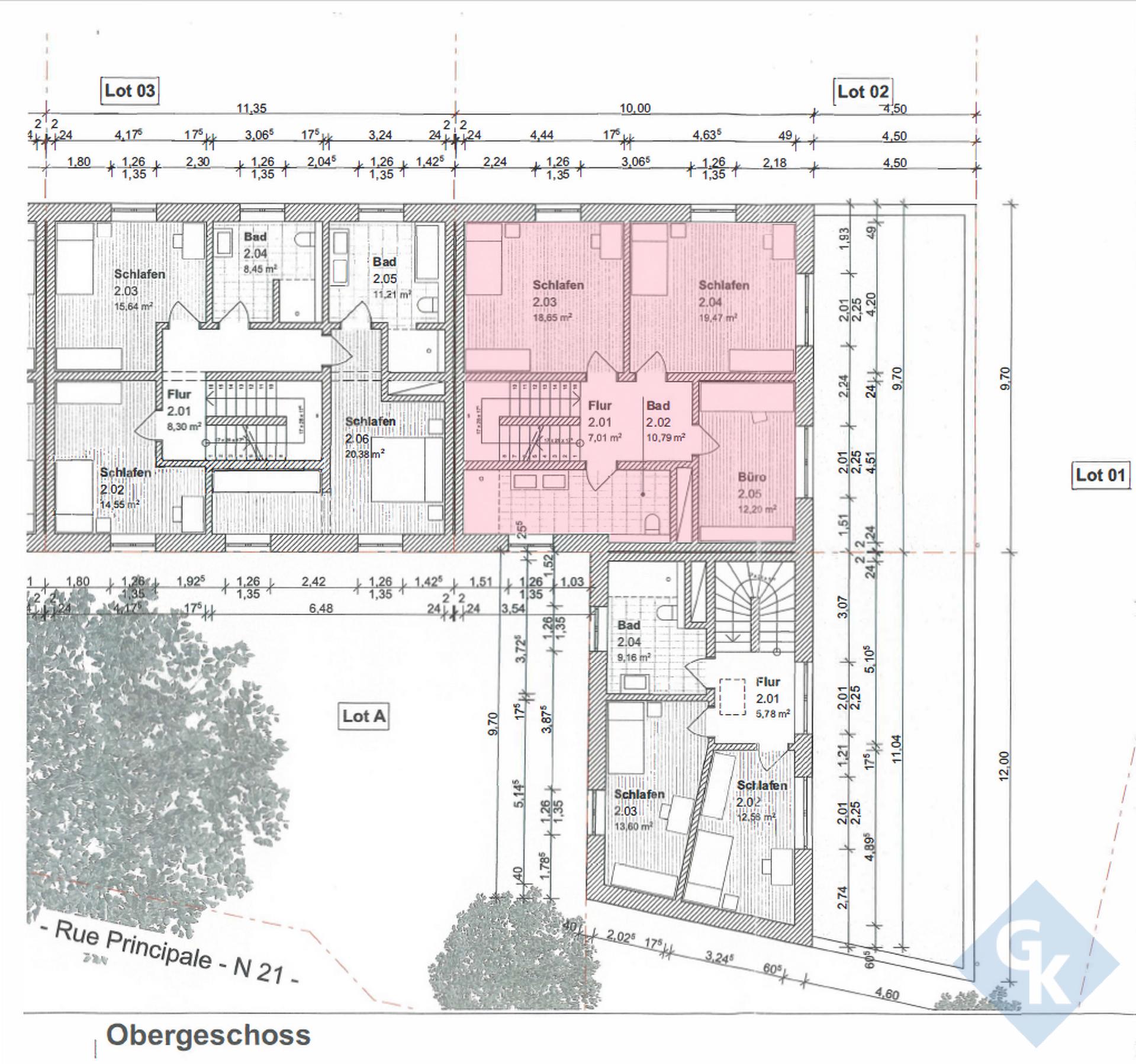
1er étage : hall de nuit, 3 chambres à coucher (18,65 m², 19,47 m² et 12,20 m²), 1 salle de douche (10,79m²)
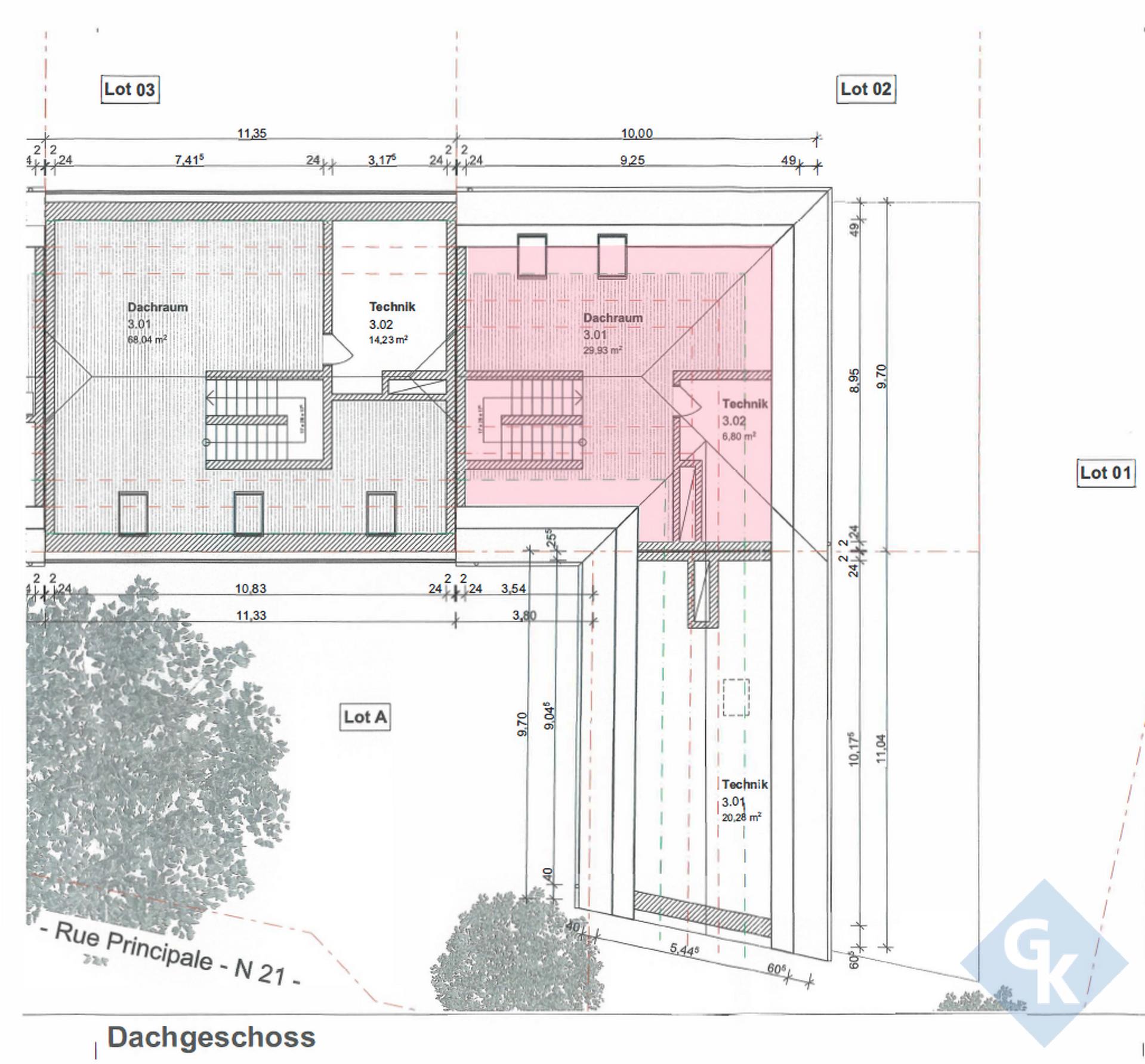
2ème étage : grenier ( 29,93 m²) et salle technique
Alentours: Carport avec 2 places de parking
Le loyer mensuel s'élève à 2.800 €.
Caution: EUR 5.600,-
Commission de l'agence : EUR 3.276- TTC
Les frais d'agence pour la location s'élèvent à un mois de loyer + TVA 17%. Les frais sont partagés entre le locataire et le propriétaire.
Pas d'animaux domestiques !
Pour tout renseignement complémentaire ou information détaillée, veuillez nous contacter par mail locations@immonord.lu ou par tél: 26 811 911.1
Avec une surface habitable de 203,34 m², cette propriété offre de beaux volumes ainsi qu'un confort moderne idéal pour un cadre de vie agréable.
Proche de toutes les commodités de la vie courante et à +- 15 minutes d'Ettelbrück.
Il se compose comme suit:
Composition du Lot 2:
R/C : hall d'entrée , débarras, WC visiteur, salle de bain (10,77 m²), chambre à coucher (25,40 m²) et grand séjour de 50,15 m² avec cuisine.
1er étage : hall de nuit, 3 chambres à coucher (18,65 m², 19,47 m² et 12,20 m²), 1 salle de douche (10,79m²)
2ème étage : grenier ( 29,93 m²) et salle technique
Alentours: Carport avec 2 places de parking
Le loyer mensuel s'élève à 2.800 €.
Caution: EUR 5.600,-
Commission de l'agence : EUR 3.276- TTC
Les frais d'agence pour la location s'élèvent à un mois de loyer + TVA 17%. Les frais sont partagés entre le locataire et le propriétaire.
Pas d'animaux domestiques !
Pour tout renseignement complémentaire ou information détaillée, veuillez nous contacter par mail locations@immonord.lu ou par tél: 26 811 911.1
Détail du bien
Intérieur
| Surface : 203.34 m² |
| Nb de chambres : 4 |
| Salle(s) de bain : 2 |
| Salle de douche : 1 |
| Disponibilité : 15.02.2026 |
Énergie
| Chauffage au sol : Oui |
| Pompe à chaleur : Oui |
| Triple vitrage : Oui |
| Vmc double flux : Oui |
| Indice énergétique : A |
| Indice isolation : B |
Extérieur
| Jardin : Oui |
| Terrasse : Oui |
| Terrain : 4.10 ares |
Parking
| Parkings : 2 |
Confort
| Volets électriques : Oui |
localisation
IMMO NORD Ingeldorf
téléphone
















